| ACHAT | LOCATION | TRANSACTION |
GESTION LOCATIVE |
SYNDIC DE COPROPRIETE |
CONSEIL EN PATRIMOINE |
ETUDE TERRITORIALE | ||
Notre conception du métier d'administrateur de biens
"Pérenniser et valoriser votre patrimoine"
![]() | ||
|
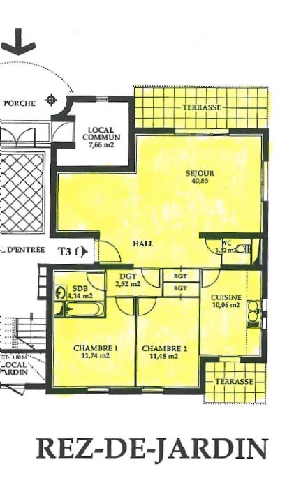
Référence de ce bien : T001196 (RCS Vienne 528 669 096) ----------------- 38790 - CHARANTONNAYSpacieux et lumineux T3, 82 m², en rez de jardin...
Vous etes intéréssé par ce bien, | ||
![]() | ||
"Le cabinet d'administration de bien Chemin Boyet
votre partenaire privilégié dans l'immobilier"
